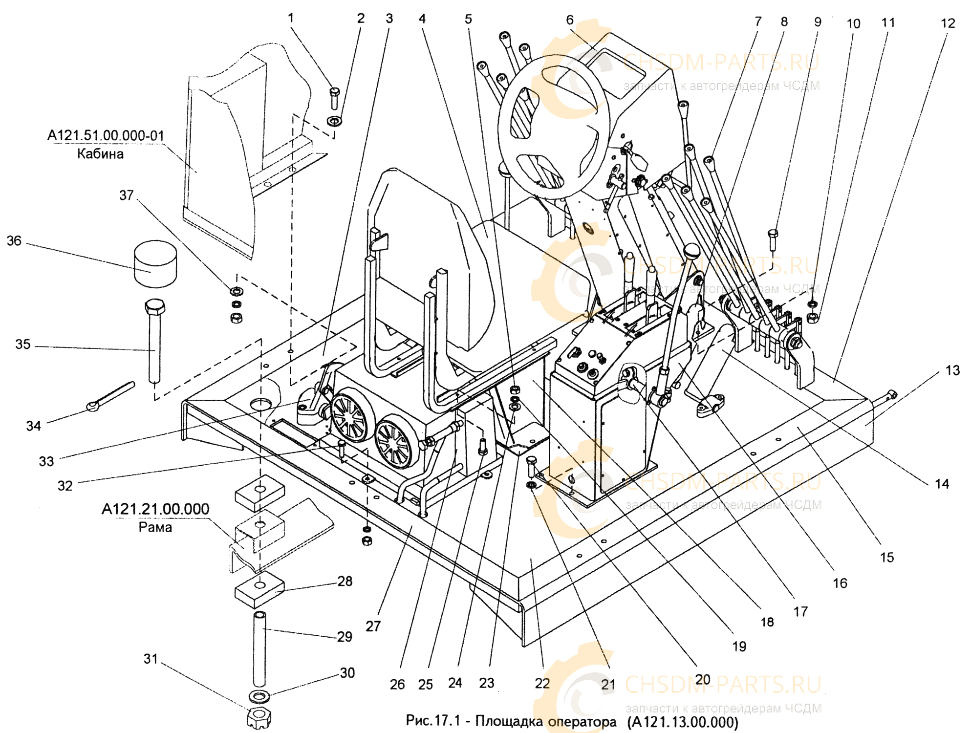
| № | Номер детали | Наименование | Кол-во | 
| А121.13.00.000 Площадка оператора | |||
| А121.21.00.000 Рама | |||
| А121.51.00.000-01 Кабина | |||
| 1 | Болт | М10-6gх35.58.019 (S16) ГОСТ 7798-70 | 12 | 
| 2 | 067.14.11.026 Шайба | 12 | |
| 3 | А121.13.00.050 Коврик левый | 1 | |
| 4 | Сиденье | У7920.01Б-2 ТУ-206 РСФСР 21-01-90 | 1 | 
| 5 | Гайка | М8-6Н.5.019 (S12) ГОСТ 5915-70 | 7 | 
| 6 | А121.13.06.000 Колонка рулевая | 1 | |
| 7 | А121.13.07.000 | Установка гидрораспределителей | 1 | 
| 8 | А121.13.03.000 | Управление колесными тормозами | 1 | 
| 9 | Болт | М10-6gх45.58.019 (S16) ГОСТ 7798-70 | 6 | 
| 10 | Шайба | 10.65Г.019 ГОСТ 6402-70 | 18 | 
| 11 | Гайка | М10-6Н.5.019 (S16) ГОСТ 5915-70 | 18 | 
| 12 | А121.13.00.007 Уплотнение переднее | 1 | |
| 13 | А121.13.00.010 Площадка рабочая | 1 | |
| 14 | А121.13.05.000 | Управление всережимным регулятором | 1 | 
| 15 | ДЗ-140А.51.02.029 Уплотнение | 2 | |
| 16 | А121.13.09.000 Пульт управления | 1 | |
| 17 | А121.13.02.000 | Управление переключением КПП | 1 | 
| 18 | А121.13.00.080 Кронштейн сиденья | 1 | |
| 19 | Шайба | 8.65Г.019 ГОСТ 6402-70 | 7 | 
| 20 | Болт | М12-6gх35.58.019 (S18) ГОСТ 7798-70 | 8 | 
| 21 | Шайба | 12.65Г.019 ГОСТ 6402-70 | 8 | 
| 22 | А121.13.00.040 Коврик правый | 1 | |
| 23 | А121.13.00.008 Уплотнение | 1 | |
| 24 | Шайба | С8.02.019 ГОСТ 11371-78 | 4 | 
| 25 | Болт | М8-6gх35.58.019(S12) ГОСТ 7798-70 | 4 | 
| 26 | Отопитель ОТ-2 | 1 | |
| 27 | А120.13.00.011 Уплотнение заднее | 1 | |
| 28 | А120.13.00.007 Амортизатор | 8 | |
| 29 | А120.13.00.012 Втулка | 4 | |
| 30 | ПКТ-0100.0014 Шайба | 4 | |
| 31 | Гайка | М20-6Н.5.019 (S30) ГОСТ 5918-73 | 4 | 
| 32 | Болт | М8-6gх25.58.019 (S12) ГОСТ 7798-70 | 3 | 
| 33 | А120.13.04.000-01 | Управление стояночным тормозом | 1 | 
| 34 | Шплинт | 3,2х32.019 ГОСТ 397-79 | 4 | 
| 35 | 067.11.17.105 Болт | 4 | |
| 36 | ДЗ-98.50.00.012 Заглушка | 4 | |
| 37 | Шайба | С10.02.019 ГОСТ 11371-78 | 12 | 
Площадка оператора А-120
						
Заполните форму и мы свяжемся с вами в ближайшее
время и ответим на все интересующие вопросы.
					
				
		Задать вопрос
	
							
